| Мова |
.jpg)
|
Технічні характеристики КТ-3Е-SH: |
||||||
|
Номінальна потужність, кВт |
125 |
150 |
200 |
250 |
300 |
350 |
|
Площа поверхні теплообміну в котлі, м2 |
11,9 |
13,0 |
16,5 |
21,3 |
24,6 |
26,7 |
|
ККД, % |
83 |
|||||
|
Витрата палива при номінальній потужності, кг/год |
21,5 |
25,5 |
34,0 |
42,5 |
51,0 |
59,5 |
|
Ємність бункера для палива, дм3 |
620 |
620 |
840 |
1050 |
1260 |
1470 |
|
Водяна ємність котла, л |
504 |
542 |
660 |
869 |
1088 |
1245 |
|
Необхідна тяга топкових газів, Па |
45–50 |
|||||
|
Діаметр димоходу, мм |
320 |
320 |
375 |
435 |
490 |
535 |
|
Ширина, мм |
1820 |
1880 |
2690 |
3160 |
3440 |
3670 |
|
Висота, мм |
1570 |
1730 |
1860 |
1950 |
2000 |
2020 |
|
Довжина, мм |
2050 |
2260 |
2390 |
2500 |
2790 |
3030 |
|
Маса, кг |
1460 |
1580 |
2020 |
2420 |
3000 |
3380 |
Габаритні розміри котла «КТ-3Е-SH» від 125 до 150 кВт
.jpg)
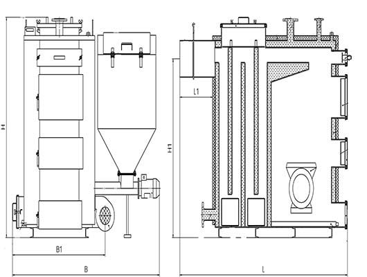
Габаритні розміри котла «КТ-3Е-SH» від 200 до 350 кВт
.jpg)
|
Номінальна потужність котла |
кВт |
125 |
150 |
200 |
250 |
300 |
350 |
|
|
Габаритні розміри котла |
B |
мм |
1820 |
1880 |
2690 |
3160 |
3440 |
3670 |
|
B1 |
870 |
1230 |
1400 |
1540 |
1655 |
1785 |
||
|
H |
1570 |
1730 |
1860 |
1950 |
2000 |
2020 |
||
|
H1 |
1385 |
1400 |
1490 |
1555 |
1590 |
1590 |
||
|
L |
2050 |
2260 |
2390 |
2500 |
2790 |
3030 |
||
|
L1 |
390 |
430 |
475 |
530 |
600 |
660 |
||