| Язык |
Котлы серии «KT-3E-SH» на твердом топливе является низкотемпературным котлом, который оснащен системой автоматической подачи топлива. Корпус котла имеет водяное охлаждение и изготовлен из стальных листов. Для эффективного и беспроблемного использования котла топливо должно соответствовать требованиям технических параметров.
В виде топлива используются пеллеты и уголь (эко-горошек)

Технические особенности котла серии «КТ-3Е-SH»:
Большая камера сгорания, что делает процесс загрузки и сжигания топлива более удобным;
Высокая эффективность котла (не менее 83%);
Современный контролер управляет работой котла и системой отопления;
Теплообменник котла выполнен из сертифицированной котельной стали (P265GH) от 5 до 10мм;
Стальные бесшовные колосники для сжигания угля;
Котел подготовлен к монтажу механической подачи воздуха (опция);
Бесшумная и стабильная работа системы подачи топлива за счет оснащения эксцентрикового механизма шарикоподшипниками.
Особенности конструкционного исполнения:
За счет микропроцессора и вентилятора обеспечивается автоматизация контроля и управления работой котла, что в свою очередь повышает эффективность.
Циклическая работа котла. Принцип этой системы сводится к однократной загрузке котла, его розжигу и запуску автоматики. При достижении определенного температурного режима в работу включается вентилятор, при этом контроллер автоматически поддерживает температуру. Закончилось топливо – контроллер отключился.
При отключении электроэнергии специальный аварийный термостат погасит огонь, обеспечив безопасность.
Котлы на пеллетах КТ-3Е-SH имеет четырехканальный теплообменник, который обеспечивает долговечность отопительному оборудованию.
Экологичность и безопасность оборудования
Принцип работы
Бункер наполняется топливом.
Используя шнек, топливо подается в котел, при этом частота зависит от установленной температуры, которая выставляется в контроллере. Если параметры отклоняются от заданных, то контроллер подает сигнал вентилятору, регулируя при этом его обороты. Таким образом, повышается производительность агрегата, при экономичном потреблении топлива.
Оптимальным топливом для серии «KT-3E-SH» является уголь фракции 5-25мм или пеллеты. Исходя из технических параметров топлива, выбранного вами, котел работает автономно от 3 до 5 суток.
|
Технические характеристики КТ-3Е-SH: |
||||||
|
Номинальная мощность, кВт |
125 |
150 |
200 |
250 |
300 |
350 |
|
Площадь поверхности теплообмена в котле, м2 |
11,9 |
13,0 |
16,5 |
21,3 |
24,6 |
26,7 |
|
КПД, % |
83 |
|||||
|
Расход топлива при номинальной мощности, кг/час |
21,5 |
25,5 |
34,0 |
42,5 |
51,0 |
59,5 |
|
Емкость бункера для топлива, дм3 |
620 |
620 |
840 |
1050 |
1260 |
1470 |
|
Водяная емкость котла, л |
504 |
542 |
660 |
869 |
1088 |
1245 |
|
Требуемая тяга топочных газов, Па |
45–50 |
|||||
|
Диаметр дымохода, мм |
320 |
320 |
375 |
435 |
490 |
535 |
|
Ширина, мм |
1820 |
1880 |
2690 |
3160 |
3440 |
3670 |
|
Высота, мм |
1570 |
1730 |
1860 |
1950 |
2000 |
2020 |
|
Длина, мм |
2050 |
2260 |
2390 |
2500 |
2790 |
3030 |
|
Масса, кг |
1460 |
1580 |
2020 |
2420 |
3000 |
3380 |
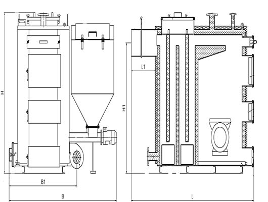
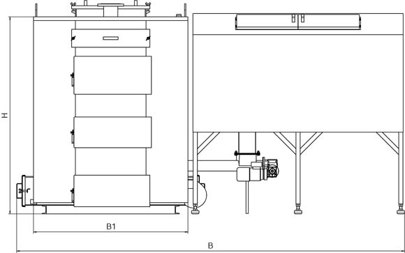
Габаритные размеры котла «KT-3E-SH»от 125 до 150 кВт

Габаритные размеры котла «KT-3E-SH»от 200 до 350 кВт

|
Параметр |
Ед. изм. |
Норма для котла KT-3E-SH |
||||||
|
Номинальная мощность котла |
кВт |
125 |
150 |
200 |
250 |
300 |
350 |
|
|
Габаритные размеры котла |
B |
мм |
1820 |
1880 |
2690 |
3160 |
3440 |
3670 |
|
B1 |
870 |
1230 |
1400 |
1540 |
1655 |
1785 |
||
|
H |
1570 |
1730 |
1860 |
1950 |
2000 |
2020 |
||
|
H1 |
1385 |
1400 |
1490 |
1555 |
1590 |
1590 |
||
|
L |
2050 |
2260 |
2390 |
2500 |
2790 |
3030 |
||
|
L1 |
390 |
430 |
475 |
530 |
600 |
660 |
||