| Язык |
котлы серии "КТ-3Е"
Котлы серии «КТ-3Е» на твердом топливе предназначены для отопления жилых, производственных, административных, а также торговых зданий. В виде топливного материала используются уголь, дрова, торфобрикеты, опилочные брикеты, отходы деревообрабатывающего производства, солома.

Технические особенности котла серии «КТ-3Е»:
Большая камера сгорания, что делает процесс загрузки и сжигания топлива более удобным;
Высокая эффективность котла (не менее 81%);
Современный контролер управляет работой котла и системой отопления;
Теплообменник котла выполнен из сертифицированной котельной стали (P265GH) от 5 до 10мм;
Стальные бесшовные колосники для сжигания угля;
Котел подготовлен к монтажу механической подачи воздуха (опция).
Конструкционные достоинства и отличия котлов КТ-3Е:
Котлы мощностью от 14 до 97 кВт оснащены трехканальным, а котлы мощностью от 125 до 350 кВт пятиканальным теплообменником, что ставит отопительные котлы модели КТ-3Е в разряд уникальных котлов производимых в Украине, так как аналогов им нет.
Применяемая термоизоляция в конструкции дает гарантию длительную безопасную и экономичную эксплуатацию на протяжении всего срока службы.
Увеличенные загрузочные дверцы позволяют использовать крупную фракцию топлива, а продуманная дополнительная термозащита предохраняет от прогорания.
Все процессы (горение топлива, работа циркуляционного насоса) автоматизированы, средствами микропроцессорного блока управления.
|
Характеристики |
Ед. изм. |
КТ-3Е |
|||||||||||
|
Номинальная мощность котла |
кВт |
14 |
25 |
46 |
80 |
97 |
125 |
150 |
200 |
250 |
300 |
350 |
|
|
Площадь теплообменника |
м2 |
2,3 |
3,1 |
4,2 |
6,7 |
7,5 |
11,9 |
13,0 |
16,5 |
21,3 |
24,6 |
26,7 |
|
|
Разовая загрузка топлива |
кг |
35 |
60 |
106 |
178 |
218 |
264 |
311 |
436 |
585 |
760 |
931 |
|
|
КПД, не менше |
% |
81 |
|||||||||||
|
Продолжительность сгорания разовой загрузки топлива |
час |
8-24 |
|||||||||||
|
Размеры топки |
глубина |
мм |
380 |
400 |
510 |
540 |
640 |
700 |
780 |
790 |
830 |
920 |
1010 |
|
ширина |
мм |
320 |
370 |
510 |
620 |
640 |
670 |
710 |
870 |
1010 |
1120 |
1250 |
|
|
объем |
дм3 |
39 |
67 |
118 |
198 |
242 |
293 |
346 |
485 |
650 |
845 |
1035 |
|
|
Водяная емкость котла |
л |
88 |
110 |
145 |
263 |
334 |
504 |
542 |
660 |
869 |
1088 |
1245 |
|
|
Вес котла без води |
кг |
310 |
380 |
500 |
860 |
1010 |
1420 |
1560 |
1860 |
2200 |
2800 |
3150 |
|
|
Требуемая тяга топочных газов |
Па |
23-30 |
45-50 |
||||||||||
|
Температура топочных газов на выходе из котла |
°C |
100-180 |
|||||||||||
|
Рекомендуемая минимальная температура воды |
°C |
58 |
|||||||||||
|
Максимальная температура воды |
°C |
90 |
|||||||||||
|
Номинальный (максимальный рабочий) давление воды |
МПа |
0,15 |
|||||||||||
|
Испытательное давление воды, не более |
МПа |
0,30 |
|||||||||||
|
Потребление электроэнергии, не более |
Вт |
85 |
85 |
105 |
170 |
170 |
210 |
210 |
320 |
490 |
490 |
810 |
|
|
Размеры загрузочной дверцы |
высота |
мм |
220 |
220 |
240 |
260 |
300 |
300 |
320 |
320 |
320 |
320 |
320 |
|
ширина |
мм |
320 |
370 |
370 |
400 |
400 |
450 |
500 |
600 |
600 |
650 |
650 |
|
|
Присоединительные (внешние) размеры борова |
мм |
180 x180 |
190 x190 |
225 x225 |
250 x250 |
260 x260 |
290 x290 |
290 x290 |
340 x340 |
390 x390 |
440 x440 |
480 x480 |
|
|
Диаметр патрубков прямой и обратной сетевой воды (Ду) |
мм |
50 |
50 |
50 |
65 |
65 |
80 |
80 |
100 |
100 |
125 |
125 |
|
|
Рекомендуемые параметры дымохода |
площадь сечения |
см2 |
296 |
332 |
462 |
586 |
635 |
795 |
795 |
1103 |
1460 |
1867 |
2228 |
|
внутренний диаметр |
мм |
195 |
205 |
245 |
275 |
285 |
320 |
320 |
375 |
435 |
490 |
535 |
|
|
высота (минимально допустимая) |
м |
5 |
5 |
7 |
7 |
7 |
8 |
9,5 |
11 |
12 |
13 |
13 |
|

|
Параметр |
Ед. измерения |
Норма для котла КТ-3E |
||||||||||||
|
Номинальная мощность котла |
кВт |
14 |
25 |
46 |
80 |
97 |
125 |
150 |
200 |
250 |
300 |
350 |
||
|
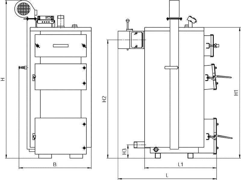
Габаритные размеры котла |
B |
мм |
785 |
815 |
955 |
1085 |
1135 |
1190 |
1230 |
1390 |
1550 |
1665 |
1795 |
|
|
H |
1210 |
1340 |
1360 |
1745 |
1805 |
1785 |
1805 |
1915 |
2025 |
2075 |
2130 |
|||
|
H1 |
945 |
1075 |
1100 |
1485 |
1545 |
1490 |
1510 |
1620 |
1715 |
1765 |
1785 |
|||
|
H2 |
815 |
940 |
945 |
1320 |
1375 |
1305 |
1325 |
1410 |
1480 |
1510 |
1510 |
|||
|
H3 |
125 |
125 |
125 |
180 |
180 |
160 |
160 |
160 |
160 |
160 |
160 |
|||
|
L |
1170 |
1245 |
1450 |
1580 |
1745 |
2195 |
2335 |
2470 |
2605 |
2895 |
3125 |
|||
|
L1 |
965 |
985 |
1100 |
1180 |
1320 |
1750 |
1870 |
1920 |
1985 |
2215 |
2385 |
|||
