| Мова |
котли серії "КТ-1Е"
Котли серії «КТ-1Е» на твердому паливі призначені для опалення житлових, виробничих, адміністративних, а також торговельних будівель. У вигляді паливного матеріалу використовуються вугілля, дрова, торфобрикет, тирсові брикети, відходи деревообробного виробництва.
.jpg)
|
Характеристики |
од. вим. |
Значення для котла КТ-1Е |
||||||
|
Потужність котла |
кВт |
15 |
20 |
24 |
33 |
38 |
45 |
|
|
Опалювальна площа котла |
М2 |
150 |
200 |
240 |
330 |
380 |
450 |
|
|
Паливо |
основне |
|
антрацит,кам'яне вугілля |
|||||
|
альтернативне |
торф, дрова, евро брикеты, солома, щепа |
|||||||
|
Разове завантаження палива |
кг |
36 |
50 |
68 |
95 |
114 |
141 |
|
|
Водяна ємність котла |
л |
71 |
81 |
95 |
118 |
132 |
152 |
|
|
Маса котла без води |
кг |
243 |
279 |
318 |
377 |
410 |
460 |
|
|
Розмір завантажувальних дверцят |
висота |
мм |
220 |
220 |
220 |
220 |
220 |
240 |
|
ширина |
280 |
360 |
360 |
360 |
360 |
360 |
||
|
Глибина топки |
мм |
350 |
350 |
390 |
480 |
510 |
550 |
|
|
Ширина топки |
мм |
280 |
360 |
410 |
440 |
470 |
520 |
|
|
Обсяг топки |
Дм3 |
40 |
55 |
75 |
105 |
127 |
157 |
|
|
Максимальна температура води на виході з котла |
°C |
90 |
||||||
|
Безперервність згоряння |
год |
8 - 24 |
||||||
|
Максимальний робочий тиск |
МПа |
0,15 |
||||||
|
Випробовуваний тиск |
МПа |
0,30 |
||||||
|
КПД |
основне паливо |
% |
81 |
|||||
|
альтернативне паливо |
76 |
|||||||
|
Необхідна тяга вихлопних газів |
Па |
20 |
22 |
22 |
25 |
25 |
25 |
|
|
Необхідна висота димаря |
М |
5 |
7 |
|||||
|
Необхідний перетин отвору димоходу |
см2 |
225 |
256 |
289 |
342 |
380 |
462 |
|
|
Ø, мм |
170 |
180 |
195 |
210 |
220 |
245 |
||
|
Приєднувальні (зовнішні) розміри борова |
висота |
мм |
160 |
170 |
180 |
195 |
205 |
225 |
|
ширина |
160 |
170 |
180 |
195 |
205 |
225 |
||
|
Споживання потужності (230V/50Hz), не більше |
Вт |
85 |
||||||
.jpg)
|
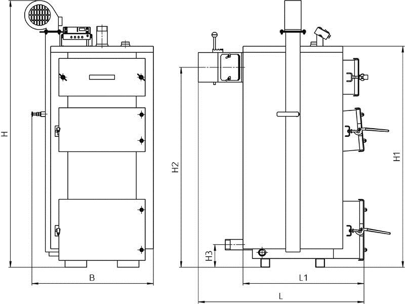
Параметр |
од. вим. |
Норма для котла KT-1E |
|||||||
|
Номінальна потужність котла |
кВт |
15 |
20 |
24 |
33 |
38 |
45 |
||
|
Габаритні розміри котла |
B |
мм |
625 |
675 |
725 |
765 |
775 |
835 |
|
|
H |
1495 |
1535 |
1575 |
1660 |
1700 |
1730 |
|||
|
H1 |
1230 |
1270 |
1310 |
1360 |
1400 |
1430 |
|||
|
H2 |
1115 |
1150 |
1185 |
1230 |
1265 |
1285 |
|||
|
H3 |
130 |
130 |
130 |
130 |
130 |
130 |
|||
|
L |
900 |
920 |
985 |
1090 |
1145 |
1205 |
|||
|
L1 |
675 |
675 |
710 |
800 |
850 |
880 |
|||
.jpg)