| Язык |
котлы серии "КТ-1Е"
Котлы серии «КТ-1Е» на твердом топливе предназначены для отопления жилых, производственных, административных, а также торговых зданий. В виде топливного материала используются уголь, дрова, торфобрикеты, опилочные брикеты, отходы деревообрабатывающего производства.

Технические особенности котла серии «КТ-1Е»:
Большая камера сгорания, что делает процесс загрузки и сжигания топлива более удобным;
Высокая эффективность котла (не менее 81%);
Современный контролер управляет работой котла и системой отопления;
Теплообменник котла выполнен из сертифицированной котельной стали (P265GH) от 5 до 10мм;
Стальные бесшовные колосники для сжигания угля;
Котел подготовлен к монтажу механической подачи воздуха (опция).
Основные преимущества котлов серии KT-1E:
компактность конструкции
большой объем топки
большая площадь теплообменника (полочный)
автоматический контроль горения топлива
верхний тип сжигания топлива
простота эксплуатации и надежность
Конструкционные особенности котлов КТ-1Е:
Котлы на твердом топливе длительного горения КТ-1Е обладают двухканальным типом теплообменника, который более эффективно нагревает основной теплообменник;
Благодаря увеличенной загрузочной дверце можно загрузить требуемый топливный объем суточной дозы хоть для отопления жилого помещения, хоть для производственного помещения;
Топливо сжигается «верхним» методом, благодаря чему загрязнение окружающего воздуха в разы сокращается;
Процесс горения происходит автоматический благодаря контроллерам;
Каждая модель котла вне зависимости от мощности имеет два ревизионных люка, один – для очистки камеры от золы, другой – для выхода дыма и панели теплообменника;
|
Характеристики |
Ед. измер. |
Значение для котла КТ-1Е |
||||||
|
Мощность котла |
кВт |
15 |
20 |
24 |
33 |
38 |
45 |
|
|
Отапливаемая площадь котла |
М2 |
150 |
200 |
240 |
330 |
380 |
450 |
|
|
Топливо |
основное |
|
антрацит, каменный уголь |
|||||
|
альтернативное |
торф, дрова, евро брикеты, солома, щепа |
|||||||
|
Разовая загрузка топлива |
кг |
36 |
50 |
68 |
95 |
114 |
141 |
|
|
Водяная ёмкость котла |
л |
71 |
81 |
95 |
118 |
132 |
152 |
|
|
Масса котла без воды |
кг |
243 |
279 |
318 |
377 |
410 |
460 |
|
|
Размер загрузочной дверцы |
высота |
мм |
220 |
220 |
220 |
220 |
220 |
240 |
|
ширина |
280 |
360 |
360 |
360 |
360 |
360 |
||
|
Глубина топки |
мм |
350 |
350 |
390 |
480 |
510 |
550 |
|
|
Ширина топки |
мм |
280 |
360 |
410 |
440 |
470 |
520 |
|
|
Объем топки |
Дм3 |
40 |
55 |
75 |
105 |
127 |
157 |
|
|
Максимальная температура воды на выходе из котла |
°C |
90 |
||||||
|
Непрерывность сгорания |
час |
8 - 24 |
||||||
|
Максимальное рабочее давление |
МПа |
0,15 |
||||||
|
Испытываемое давление |
МПа |
0,30 |
||||||
|
КПД |
основное топливо |
% |
81 |
|||||
|
альтернативное топливо |
76 |
|||||||
|
Требуемая тяга выхлопных газов |
Па |
20 |
22 |
22 |
25 |
25 |
25 |
|
|
Требуемая высота дымохода |
М |
5 |
7 |
|||||
|
Требуемое сечение отверстия дымохода |
см2 |
225 |
256 |
289 |
342 |
380 |
462 |
|
|
Ø, мм |
170 |
180 |
195 |
210 |
220 |
245 |
||
|
Присоединительные (внешние) размеры борова |
высота |
мм |
160 |
170 |
180 |
195 |
205 |
225 |
|
ширина |
160 |
170 |
180 |
195 |
205 |
225 |
||
|
Потребление мощности (230V/50Hz), не более |
Вт |
85 |
||||||

|
Параметр |
Ед. изм. |
Норма для котла KT-1E |
|||||||
|
Номинальная мощность котла |
кВт |
15 |
20 |
24 |
33 |
38 |
45 |
||
|
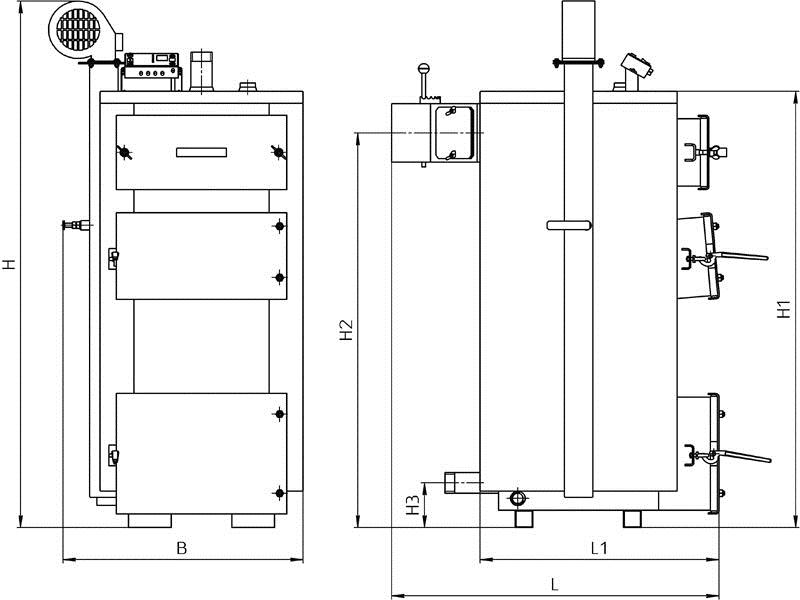
Габаритные размеры котла |
B |
мм |
625 |
675 |
725 |
765 |
775 |
835 |
|
|
H |
1495 |
1535 |
1575 |
1660 |
1700 |
1730 |
|||
|
H1 |
1230 |
1270 |
1310 |
1360 |
1400 |
1430 |
|||
|
H2 |
1115 |
1150 |
1185 |
1230 |
1265 |
1285 |
|||
|
H3 |
130 |
130 |
130 |
130 |
130 |
130 |
|||
|
L |
900 |
920 |
985 |
1090 |
1145 |
1205 |
|||
|
L1 |
675 |
675 |
710 |
800 |
850 |
880 |
|||
