| Мова |
Котли серії «КТМ» на твердому паливі призначені для опалення побутових, виробничих, адміністративних будівель та інших споруд. У вигляді палива використовуються дрова, кам'яне вугілля (антрацит, полуантраціт, курной вугілля), кусковий торф, брикети з торфу і тирси, відходи деревообробної промисловості.
.jpg)
|
Параметр |
од. вим. |
Норма для котла KTM |
|||||||
|
Потужність |
кВт |
10 |
15 |
19 |
23 |
27 |
37 |
47 |
|
|
Опалювальна площа |
м2 |
100 |
150 |
190 |
230 |
270 |
370 |
470 |
|
|
Паливо |
осн. |
- |
антрацит,кам'яне вугілля |
||||||
|
альтер. |
- |
дрова |
|||||||
|
Площа теплообмінника |
м2 |
1,2 |
1,6 |
||||||
|
КПД, не меньш |
% |
81 |
|||||||
|
Разове завантаження котла |
кг |
28 |
45 |
||||||
|
Безперервність згоряння |
год |
6-48 |
|||||||
|
Розмiр топки |
глибина |
мм |
400 |
450 |
|||||
|
ширiна |
мм |
295 |
295 |
||||||
|
висота |
мм |
275 |
375 |
||||||
|
обсяг |
дм3 |
32 |
50 |
||||||
|
Водяна ємність |
л |
58 |
72 |
||||||
|
Маса без води |
кг |
160 |
180 |
||||||
|
Необхідна тяга вихлопних газів |
Па |
23-30 |
|||||||
|
Температура топкових газів на виході |
°C |
100-180 |
|||||||
|
Мінімальна температура води |
°C |
58 |
|||||||
|
Максимальна температура води |
°C |
90 |
|||||||
|
Максимальний робочий тиск |
МПа |
0,15 |
|||||||
|
Випробовуване тиск |
МПа |
0,25 |
|||||||
|
Розмір завантажувальних дверцят котлів |
висота |
мм |
210 |
210 |
|||||
|
ширiна |
мм |
295 |
295 |
||||||
|
Зовнішні розміри борова котлів |
мм |
159 |
159 |
||||||
|
Дiаметр патрубкiв (Ду) |
мм |
50 |
50 |
||||||
|
Параметри димоходу |
площа перетину |
см2 |
200 |
200 |
|||||
|
зов. дiаметр |
мм |
160 |
160 |
||||||
|
висота |
м |
4,0 |
5,0 |
||||||
.jpg)
.jpg)
|
Параметр |
од. вим. |
Норма для котла KTM |
|||||||
|
Потужність |
кВт |
10 |
15 |
19 |
23 |
27 |
37 |
47 |
|
|
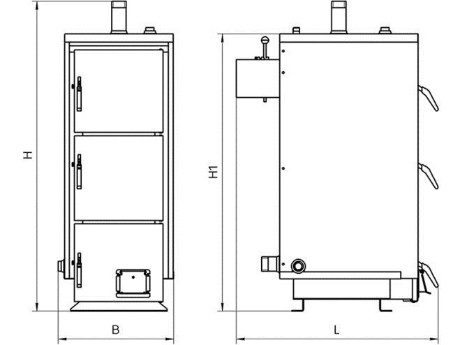
Габаритні розміри |
B |
мм |
490 |
490 |
|||||
|
H |
1300 |
1400 |
|||||||
|
H1 |
1160 |
1260 |
|||||||
|
L |
850 |
900 |
|||||||