| Язык |
Котлы серии «КТМ» на твердом топливе предназначены для отопления бытовых, производственных, административных зданий и других сооружений. В виде топлива используются дрова, каменный уголь (антрацит, полуантрацит, курной уголь), кусковой торф, брикеты из торфа и опилок, отходы деревообрабатывающей промышленности.

|
Параметр |
Ед. из. |
Норма для котла KTM |
|||||||
|
Мощность |
кВт |
10 |
15 |
19 |
23 |
27 |
37 |
47 |
|
|
Отапливаемая площадь |
м2 |
100 |
150 |
190 |
230 |
270 |
370 |
470 |
|
|
Топливо |
осн. |
- |
антрацит, каменный уголь |
||||||
|
альтер. |
- |
дрова |
|||||||
|
Площадь теплообменника |
м2 |
1,2 |
1,6 |
||||||
|
КПД, не менее |
% |
81 |
|||||||
|
Разовая загрузка котла |
кг |
28 |
45 |
||||||
|
Непрерывность сгорания |
час |
6-48 |
|||||||
|
Размер топки |
глубина |
мм |
400 |
450 |
|||||
|
ширина |
мм |
295 |
295 |
||||||
|
высота |
мм |
275 |
375 |
||||||
|
объем |
дм3 |
32 |
50 |
||||||
|
Водяная ёмкость |
л |
58 |
72 |
||||||
|
Масса без воды |
кг |
160 |
180 |
||||||
|
Требуемая тяга выхлопных газов |
Па |
23-30 |
|||||||
|
Температура топочных газов на выходе |
°C |
100-180 |
|||||||
|
Минимальная температура воды |
°C |
58 |
|||||||
|
Максимальна температура воды |
°C |
90 |
|||||||
|
Максимальное рабочее давление |
МПа |
0,15 |
|||||||
|
Испытываемое давление |
МПа |
0,25 |
|||||||
|
Размер загрузочной дверцы котлов |
высота |
мм |
210 |
210 |
|||||
|
ширина |
мм |
295 |
295 |
||||||
|
Внешние размеры борова котлов |
мм |
159 |
159 |
||||||
|
Диаметр патрубков (Ду) |
мм |
50 |
50 |
||||||
|
Параметры дымохода |
площадь сечения |
см2 |
200 |
200 |
|||||
|
вн. диаметр |
мм |
160 |
160 |
||||||
|
высота |
м |
4,0 |
5,0 |
||||||

|
Параметр |
Ед. из. |
Норма для котла KTM |
|||||||
|
Мощность |
кВт |
10 |
15 |
19 |
23 |
27 |
37 |
47 |
|
|
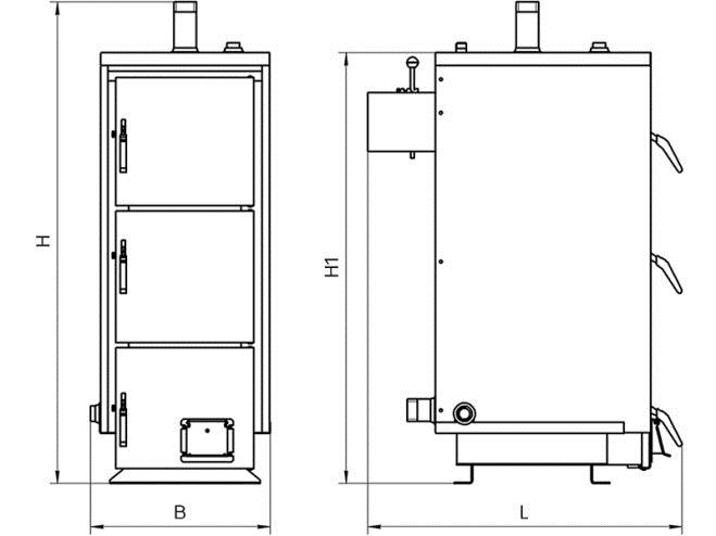
Габаритные размеры |
B |
мм |
490 |
490 |
|||||
|
H |
1300 |
1400 |
|||||||
|
H1 |
1160 |
1260 |
|||||||
|
L |
850 |
900 |
|||||||