| Язык |
Котлы серии «KT-2E-SH» на твердом топливе является низкотемпературным котлом, который оснащен системой автоматической подачи топлива. Корпус котла имеет водяное охлаждение и изготовлен из стальных листов. Для эффективного и беспроблемного использования котла топливо должно соответствовать требованиям технических параметров.
В виде топлива используются пеллеты и уголь (эко-горошек).

Технические особенности котла серии «КТ-2Е-SH»:
Большая камера сгорания, что делает процесс загрузки и сжигания топлива более удобным;
Высокая эффективность котла (не менее 83%);
Современный контролер управляет работой котла и системой отопления;
Теплообменник котла выполнен из сертифицированной котельной стали (P265GH) от 5 до 10мм;
Стальные бесшовные колосники для сжигания угля;
Котел подготовлен к монтажу механической подачи воздуха (опция);
Бесшумная и стабильная работа системы подачи топлива за счет оснащения эксцентрикового механизма шарикоподшипниками.
Комплектуются котлы КТ-2Е SH такими агрегатами:
корпус
топливный бункер
пультом управления
механизм подачи и сжигания пеллет.
Котел на пеллетах КТ-2Е SH — преимущества:
Основное отличие КТ-2Е SH от других автоматических твердотопливных котлов на пеллетах – это применение микропроцессора для управления и контроля работы, который также регулирует подачу нагретого воздуха вентилятором.
Облегченный доступ ко всем конвекционным каналам.
Автоматический механизм подачи и сжигания топлива произведен в Европе лидером рынка Pancerpol. Это характеризует оснащение механизма подачи топлива системой самоочистки, благодаря чему облегчается работа и продлевается срок службы агрегата. Даже при использовании не слишком качественного топлива.
Наличие контролера, который осуществляет нагрев воды для снабжения горячей водой отапливаемого объекта, которая подается через бойлеры.
Возможен переход данной серии котлов на уголь, дрова, брикеты и т.п. с ручной загрузкой. Для этого необходимо заказать чугунные колосники, как дополнительное оборудование.
|
Технические характеристики КТ-2Е-SH: |
||||||||
|
Номинальная мощность, кВт |
17 |
25 |
38 |
50 |
62 |
75 |
95 |
120 |
|
Площадь поверхности теплообмена в котле, м2 |
2,5 |
2,9 |
3,9 |
4,6 |
5,3 |
6,2 |
7,8 |
9,8 |
|
КПД, % |
83 |
|||||||
|
Расход топлива при номинальной мощности, кг/час |
3,3 |
4,2 |
6,5 |
8,5 |
10 |
12,7 |
17 |
21 |
|
Емкость бункера для топлива, дм3 |
215 |
240 |
340 |
380 |
460 |
540 |
620 |
620 |
|
Водяная емкость котла, л |
82 |
117 |
152 |
192 |
222 |
268 |
398 |
473 |
|
Требуемая тяга топочных газов, Па |
23–30 |
|||||||
|
Диаметр дымохода, мм |
170 |
180 |
215 |
240 |
255 |
275 |
300 |
340 |
|
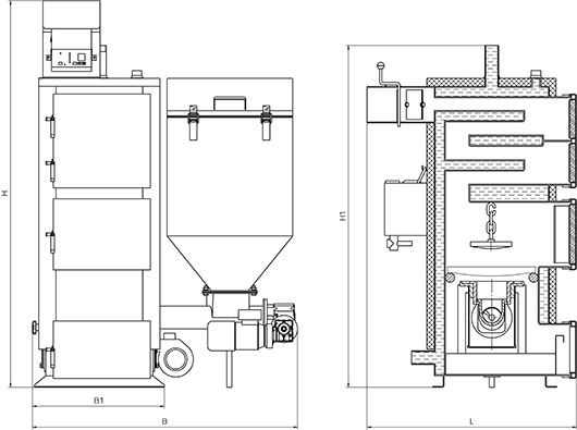
Ширина, мм |
1175 |
1175 |
1210 |
1335 |
1585 |
1635 |
1770 |
1770 |
|
Высота, мм |
1470 |
1530 |
1670 |
1825 |
1925 |
1995 |
2190 |
2190 |
|
Длина, мм |
1000 |
1050 |
1170 |
1220 |
1290 |
1380 |
1540 |
1600 |
|
Масса, кг |
390 |
435 |
525 |
610 |
700 |
780 |
1065 |
1250 |

|
Параметр |
Норма для KT-2E-SH |
||||||||||||||||
|
Мощность кВт |
17 |
25 |
31 |
38 |
50 |
62 |
75 |
95 |
120 |
||||||||
|
Габаритные размеры (мм) |
|||||||||||||||||
|
B |
1180 |
1180 |
1230 |
1230 |
1320 |
1610 |
1650 |
1790 |
1730 |
||||||||
|
B1 |
590 |
590 |
610 |
610 |
660 |
750 |
760 |
830 |
940 |
||||||||
|
H |
1710 |
1770 |
1800 |
1910 |
1860 |
1950 |
2000 |
2200 |
2200 |
||||||||
|
H1 |
1510 |
1570 |
1600 |
1710 |
1860 |
1950 |
2000 |
2200 |
2200 |
||||||||
|
L |
1020 |
1080 |
1140 |
1190 |
1240 |
1320 |
1410 |
1550 |
1620 |
||||||||
